cad
CADデータ
本詳細図は、納り例を示すもので、他部材も含めた
物性を保証するものではありません。
また、ECPの工事範囲を示すものでもありません。
【ご注意】
- [1]このCADデータは納まり例を示すものであり、全ての建物に適用できるものではありません。
- [2]CADデータの利用は、使用者の責任においてお取り扱いくださるようお願いいたします。
- [3]CADデータの内容を、ECP協会に無断で譲渡・販売を目的に複製することを禁じます。
- [4]CADデータを利用したことによって起こる損害に対して、ECP協会は一切の責任を負いかねます。
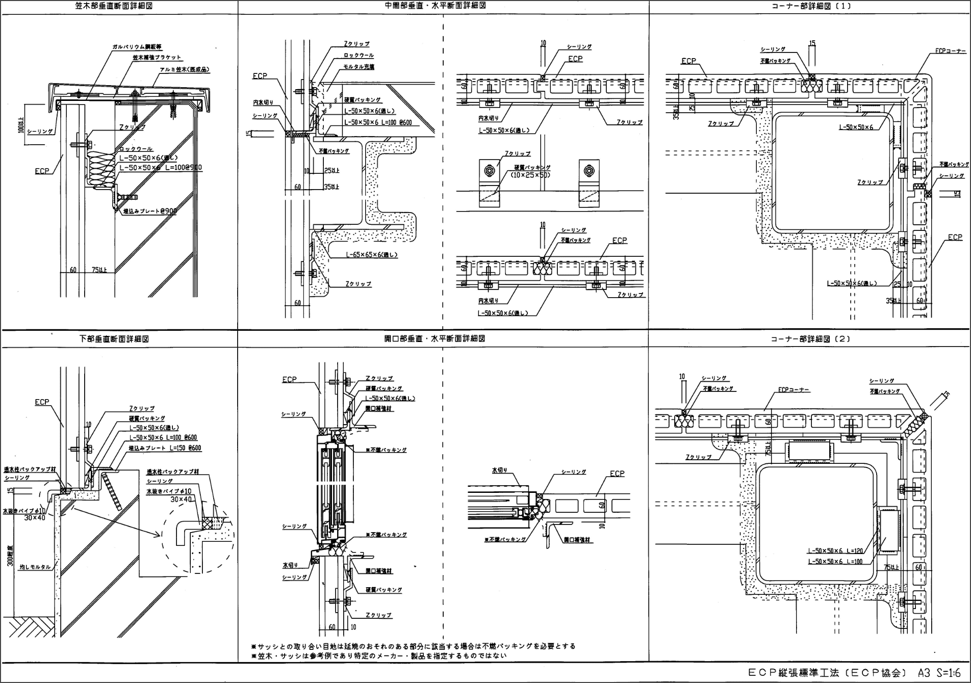
1次防水工法詳細図
縦張り工法
横張り工法
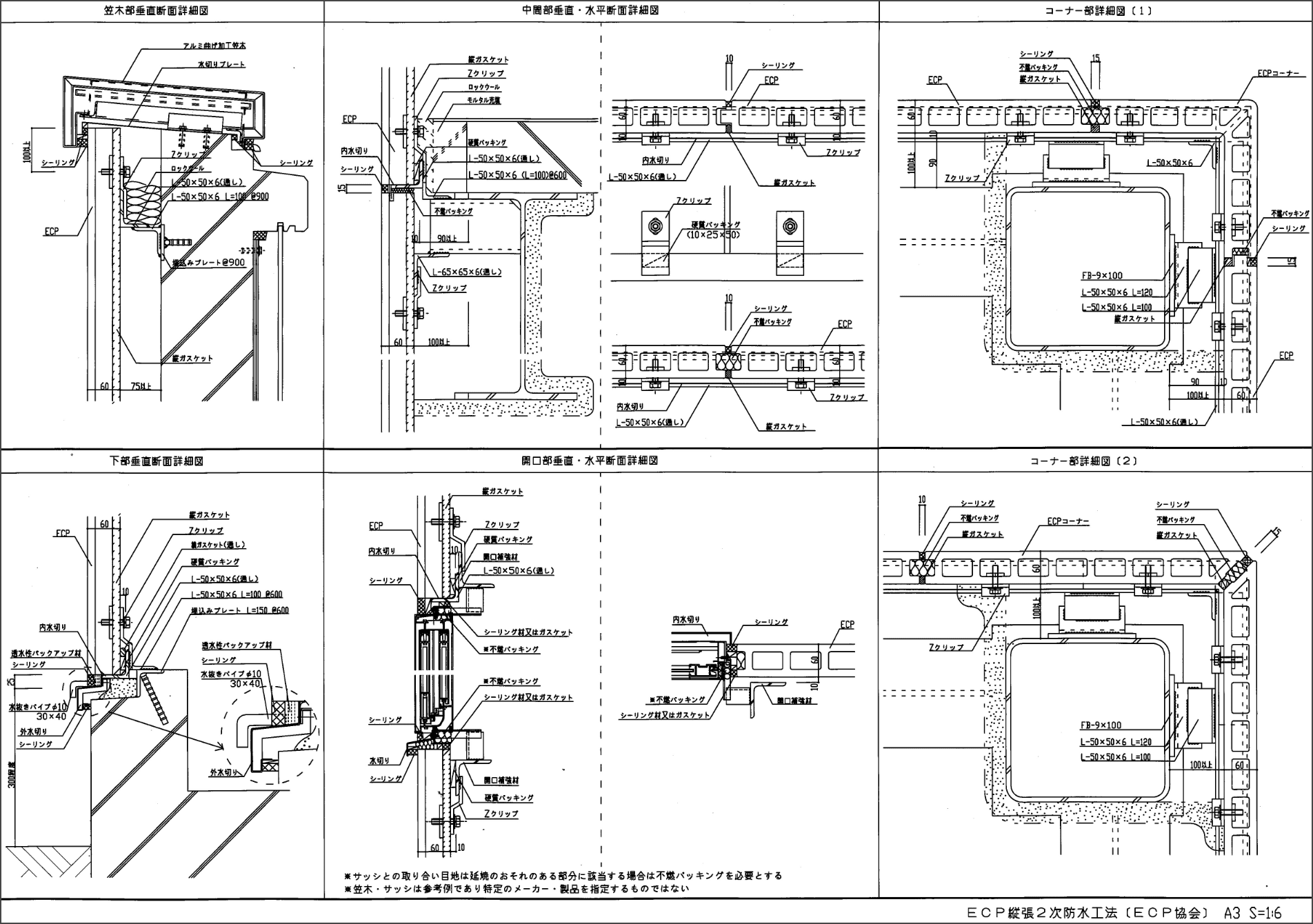
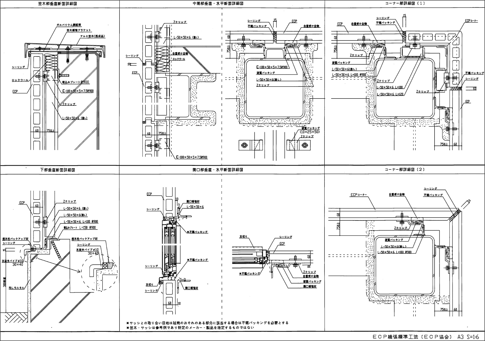
2次防水工法詳細図
縦張り工法
横張り工法
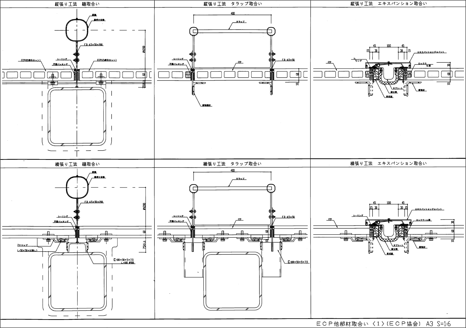
その他詳細図
他部材取合い参考1
他部材取合い参考2